Woonoppervlakte
Circa 128 m²
Perceeloppervlakte
Circa 307 m²
Bouwjaar
Gebouwd in 1986
Aantal kamers
5 kamers (4 slaapkamers)

Muiderweg 17

3891 DA, Zeewolde (Flevoland)

Flevopand Makelaars is bijzonder trots om u deze halfvrijstaande woning met 4 slaapkamers aan te mogen bieden. Bent u toe aan een volgende stap op het gebied van wonen? Dan is deze verrassend ruime woning aan de Muiderweg 17 in Zeewolde er eentje om met stip op uw lijstje te zetten. Met vier slaapkamers, een royale tuin, zowel aan de voor- als achterzijde, en talloze praktische pluspunten is dit huis geschikt voor een brede doelgroep. Laten we samen een blik werpen op uw mogelijke nieuwe thuis.

Indeling:

Begane grond:
Nadat u uw auto op de oprit heeft geparkeerd loopt u door de grote voortuin gelegen op het noorden en stapt u binnen in de woning, meteen valt op hoe heerlijk licht en ruim de entree is. Naast een garderobe bevindt zich hier ook het toilet en de trapopgang naar de eerste verdieping.

Gaat u aan het einde van de gang de deur door dan stapt u in een zeer ruime woonkamer, met een knusse tuinkamer. Deze ruimte is heerlijk licht door de grote ramen en is het goed toeven en biedt mogelijkheden om gedeeltelijk te veranderen in een slaapkamer voor het creëren van een zogeheten levensloopbestendige woning. Beide ruimtes zijn voorzien van deuren naar de achtertuin. In de woonkamer is tevens nog de toegang te vinden tot de trapkast. Loopt u verder de woning in dan komt u in de open keuken terecht. Deze ruimte is eenvoudig en praktisch ingericht, een wederom heerlijk groot raam werpt meer dan voldoende licht in de ruimte waardoor koken en tafelen geen sombere bedoening wordt.

Via de bijkeuken waar de wasmachine en droger staan opgesteld, komt u via het zijpad in de ruime achtertuin gelegen op het zuiden, deze ruimte biedt genoeg mogelijkheden en niet geheel onbelangrijk, privacy, om te genieten van de zon, het groen en elkaar.
De bijkeuken bied tevens toegang tot de garage, die voorzien is van stroom en water, ideaal voor uw auto, (tuin)gereedschap en alle andere zaken die u liever niet in uw huis heeft.

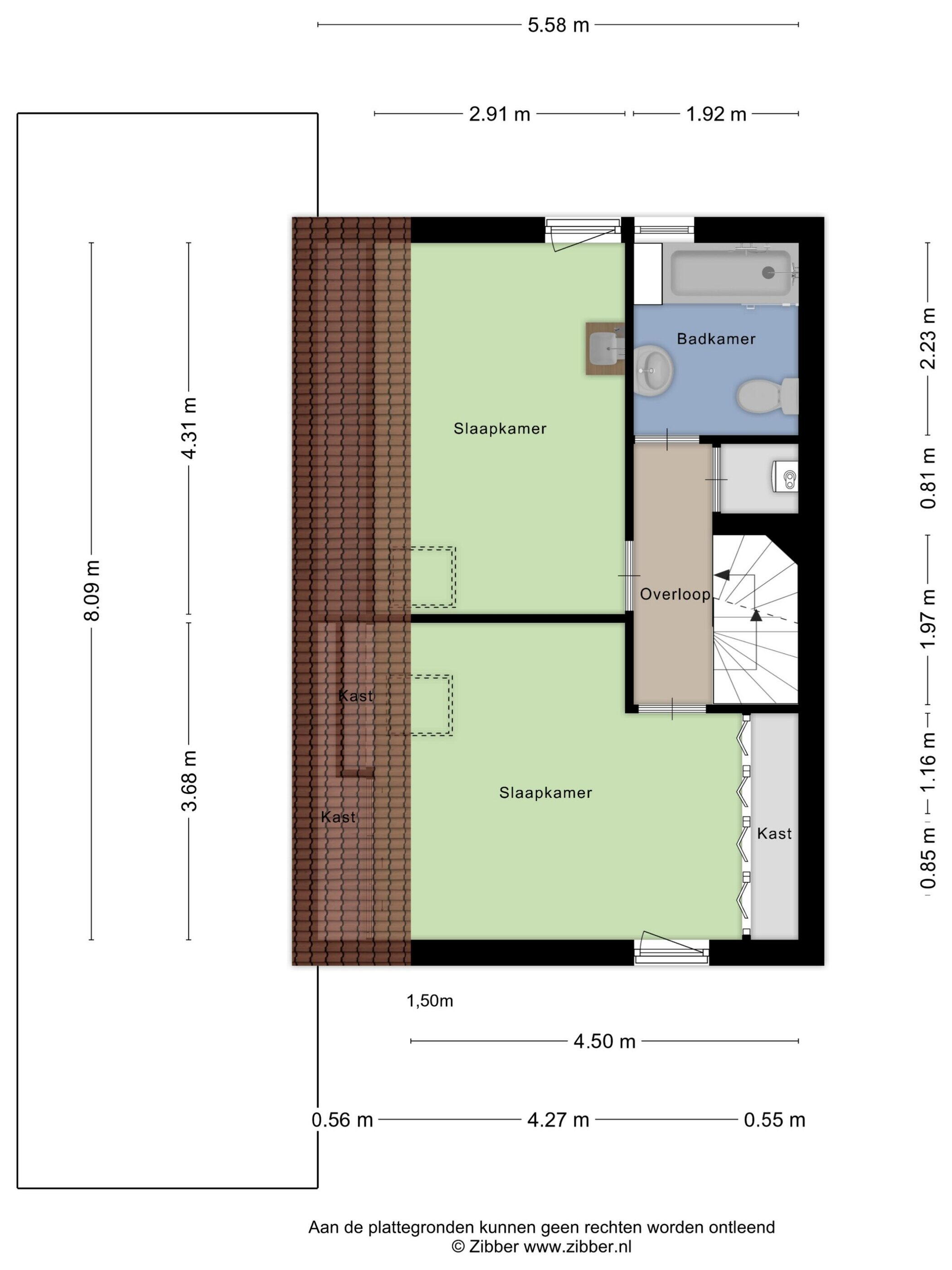
Eerste verdieping:
Via de houten trap komt u op de overloop, ook hiervoor geldt dat alles heel neutraal en licht is en dat geeft rust aan de ruimte. Hier bevinden zich twee ruime slaapkamers, waarvan 1 met een ingebouwde kastenwand, afgewerkt met plafondhoge louvre deurtjes. Beide slaapkamers hebben een deur in de buitengevel die voorzien is van een Frans balkon. Hierdoor kan er heerlijk veel frisse lucht naar binnen. Ook bevindt zich op één van de kamers nog een wastafel. Naast deze slaapkamers is er nog een inbouwkast op de overloop en dan nog een badkamer. Deze badkamer is functioneel maar verouderd. U vindt hier een wastafel met kastje, ligbad met een douchescherm en een tweede toilet.

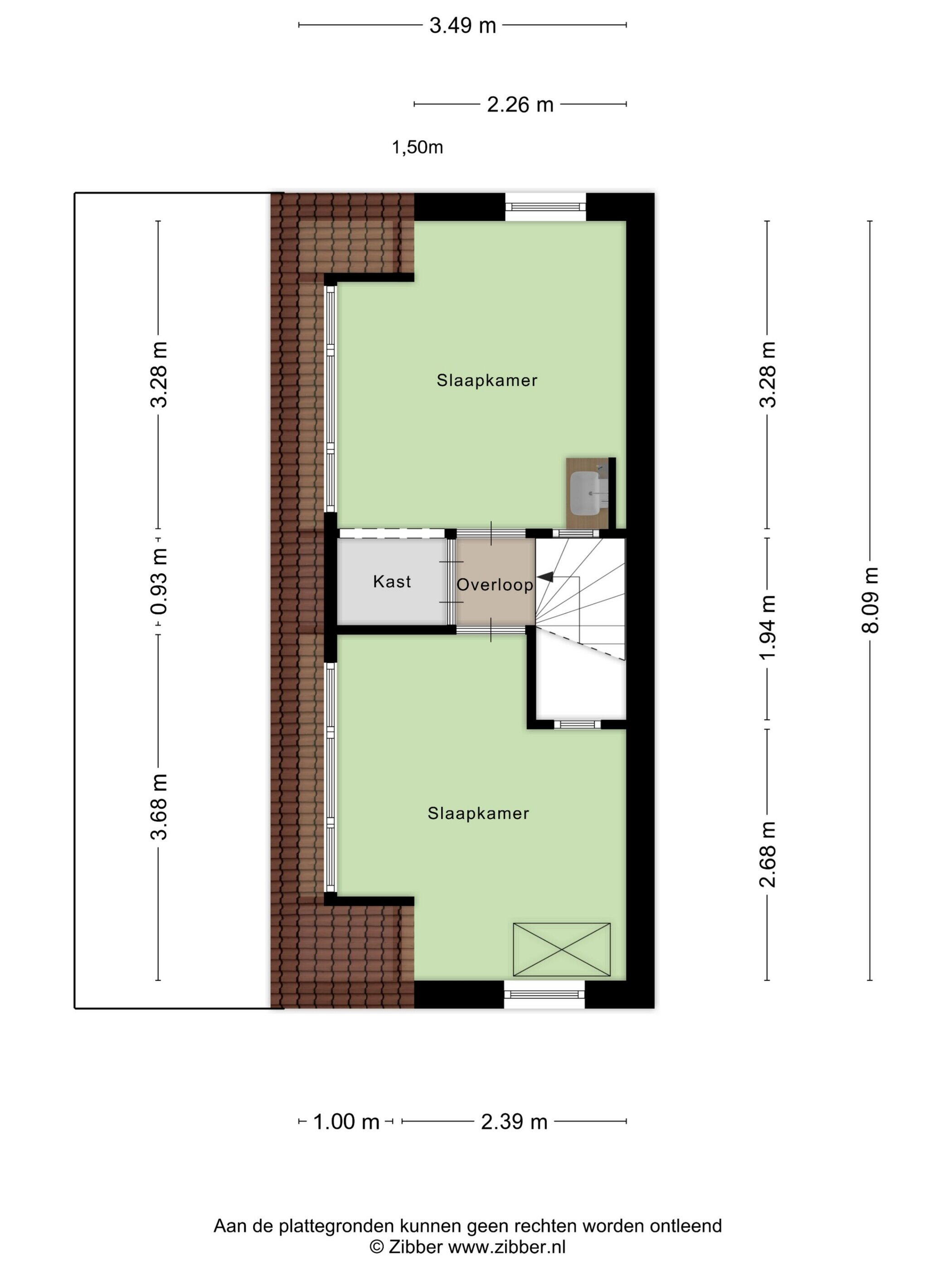
Tweede verdieping:
Wanneer u bovenkomt heeft u drie deuren voor zich, veel groter is deze overloop niet, maar dat is ook niet nodig, het verschaft u de toegang tot nog een inbouwkast en twee ruime slaapkamers, beide voorzien van een onderhoudsvrije (keralit) dakkapel waardoor het ruime en lichte ruimtes zijn geworden.
Beide ruimtes behoeven nog een beetje afwerking, maar dit is vrij minimaal. En ook op één van deze slaapkamers is een wastafel geplaatst. Voldoende ruimte voor een gast dus!
Dan rest ons nog de bergzolder te benoemen waar u bij kan komen middels een vlizotrap in één van de kamers

Bijzonderheden:
• Halfvrijstaande woning
• Perceel van 307 m²
• Zonnige privacyrijke tuin op het zuiden
• Vier slaapkamers
• Recent buitenom en deels binnen geschilderd (2025)
• Twee toiletten
• Eigen oprit en garage
• Recent vernieuwde cv ketel en mechanische ventilatie (2024)
• Levensloopbestendig te maken
• Onderhoudsvrije keralit dakkapellen

Met Muiderweg 17 haalt u veel huis en nog meer ‘thuis’ in huis. Ideaal voor gezinnen die willen doorpakken, ruimte zoeken en waarde hechten aan rust en pivacy. Heeft u interesse, bent u benieuwd naar de mogelijkheden of ziet u zichzelf al zitten in deze fijne woning? Neem dan snel contact met ons op en kom langs voor een bezichtiging, wie weet wordt dit uw nieuwe adres!

Plattegronden

Overdracht

Vraagprijs
€ 475.000 k.k.
Status
Verkocht
Aanvaarding
In overleg

Bouw

Object type
Eengezinswoning, halfvrijstaande woning
Soort bouw
Bestaande bouw
Bouwjaar
1986
Soort dak
Zadeldak bedekt met pannen

Oppervlakte en inhoud

Woonoppervlakte
128 m²
Perceeloppervlakte
307 m²
Inhoud
522 m³
Overige inpandige ruimte
19 m²

Indeling

Aantal kamers
5 kamers (4 slaapkamers)
Aantal badkamers
1 badkamers (1 toilet)
Badkamervoorzieningen
Ligbad, toilet, wasbak
Aantal woonlagen
4 woonlagen
Voorzieningen
Mechanische ventilatie, glasvezelkabel, dakraam

Energie

Energielabel
C
Energielabel registratie
27-12-2020
Isolatie
Vloerisolatie, volledig geïsoleerd, dubbel glas
Verwarming
Cv-ketel
Warm water
Cv-ketel
Cv ketel
Nefit proline hrc24, gas, combiketel, uit 2024, eigendom

Buitenruimte

Ligging
Aan rustige weg, in woonwijk
Tuin
Voortuin, achtertuin
Afmetingen voortuin
99 m² (9 meter diep en 11 meter breed)
Afmetingen achtertuin
121 m² (11 meter diep en 11 meter breed)
ligging tuin
Gelegen op het zuidwesten

Garage

Soort garage
Aangebouwde stenen garage
Capaciteit
1 auto
Voorzieningen
Elektra, stromend water

Parkeergelegenheid

Soort parkeergelegenheid
Openbaar parkeren

Energieverbruik in Zeewolde

Energielabel deze woning

Energielabel C

Publicatie energielabel: 27-12-2020

Stroomverbruik per jaar

4270 kWh

(Gemiddelde vrijstaande woning in Zeewolde)

Gasverbruik per jaar

1730 m³

(Gemiddelde vrijstaande woning in Zeewolde)

* Cijfers zijn afkomstig van het CBS en bedoeld als indicatie en kunnen verschillen voor deze woning

Indicatie hypotheeklasten

Eigen inleg:
Spaargeld / overwaarde

Rente:
Laagste 10-jaars rente

Laagste 10-jaars rente

2,93% - Woonfonds Groen Woonge... - NHG


3,2% - Woonfonds Groen Woongen... - 80%

Laagste 20-jaars rente

3,19% - Centraal Beheer Groen... - NHG


3,57% - Argenta Groen Hypothee... - 80%

Laagste 30-jaars rente

3,34% - Centraal Beheer Groen... - NHG


3,74% - Argenta Groen Hypothee... - 80%


Hypotheek:

Bruto maandlasten: € 0 p/m

Netto maandlasten: € 0 p/m

Hoe berekenen we dit?

Het rentepercentage is gebaseerd op de laagste 10 jaars vaste rente voor één hypotheekdeel. De vermelde rente (3.2% zonder NHG) is gecontroleerd op 13-12-2025. Deze berekening is gebaseerd op een annuïteitenhypotheek die volledig wordt afgelost, waarbij de maandlasten gedurende de gehele looptijd gelijk blijven. De werkelijke rente en netto maandlasten kunnen variëren, afhankelijk van uw persoonlijke situatie en de hypotheekverstrekker. Raadpleeg een financieel adviseur voor een nauwkeurige berekening en advies. Aan deze berekening kunnen geen rechten worden ontleend; het dient enkel als indicatie.

Documentatie

Kadastrale kaart

Leefomgeving

Plattegronden PDF

BAG uittreksel

WOZ waarderapport

Lijst van zaken

Vragenlijst deel 1

Kadastrale kaart

Brochure Muiderweg 17

Bezoek onze website

Zonnegrenzen bekijken

Op de kaart

Inwoners in Zeewolde

Cijfers voor postcodegebied 3891

Totaal aantal inwoners
4800 inwoners
Mannen
49%
Vrouwen
51%

Inwoners in Zeewolde

Cijfers voor postcodegebied 3891

tot 15 jaar
14%
15 tot 25 jaar
11%
25 tot 35 jaar
20%
45 tot 65 jaar
32%
65 en ouder
22%

Huishoudens in Zeewolde

Cijfers voor postcodegebied 3891

Eenpersoons zonder kinderen
34%
Meerpersoons zonder kinderen
33%
Huishoudens zonder kinderen
67%

Huishoudens in Zeewolde

Cijfers voor postcodegebied 3891

Huishoudens met één kind
7%
Huishoudens met meerdere kinderen
25%
Huishoudens met kinderen
32%

Woningen in Zeewolde

Cijfers voor postcodegebied 3891

Woningen voor 1945
1%
Woningen tussen 1945 en 1965
1%
Woningen tussen 1965 en 1975
1%
Woningen tussen 1975 en 1985
17%
Woningen tussen 1985 en 1995
67%

Woningen in Zeewolde

Cijfers voor postcodegebied 3891

Woningen tussen 1995 en 2005
9%
Woningen tussen 2005 en 2015
5%
Woningen na 2015
2%
Huurwoningen
40%
Koopwoningen
60%

Overige in Zeewolde

Cijfers voor postcodegebied 3891

Gemiddelde WOZ waarde
€ 236.000,-
Personen onder de 65 met uitkering
8%

Overige in Zeewolde

Cijfers voor postcodegebied 3891

Adressen per km²
1229
Stedelijkheid (schaal 1 op 5)
60%
Postcode kaart 3891 Gemeente kaart zeewolde

Korte feiten over Zeewolde

Zeewolde is een van de zes gemeenten van de Nederlandse provincie Flevoland, die drooggelegd is in de jaren zestig van de vorige eeuw. De gemeente telt 23.883 inwoners (1 januari 2024, bron: CBS) en heeft een relatief grote landoppervlakte van 248,76 km² (bijna twee keer zoveel als de buurgemeente Almere). Zeewolde werd in 1984 een zelfstandige gemeente en is daarmee de jongste, niet door samenvoeging ontstane, gemeente van Nederland.

Flevopand Makelaars

Indien u vragen heeft of u wilt een bezichtiging inplannen, dan kunt u gebruik maken van het formulier hiernaast. Er zal daarna op korte termijn contact met u worden opgenomen.

Raadhuisstraat 40

3891 EB, Zeewolde

036 200 2123 info@flevopand.nl www.flevopand.nl

Over Flevopand Makelaars

Veelzijdige regio

Onmetelijk veel groen, eindeloos veel water, vogels, lucht, ruimte, de dynamiek van een grote stad of juist de knusheid van een dorp? De Provincie Flevoland heeft het allemaal te bieden. Niet zo gek dus dat veel mensen hier heel graag wonen of willen wonen. Ben jij ook op zoek naar een huis in deze prettige omgeving? Wij helpen je graag op weg.

Flexibele makelaar

Of je nu op huizenjacht bent of juist je woning wilt verkopen – in een regio met zoveel gezichten is het handig om de hulp in te schakelen van een makelaar die de omgeving écht kent. Op ons kantoor is veel ervaring; 3 jaar werkzaam geweest in Amersfoort, 5 jaar werkzaam geweest in Almere, 7 jaar in Lelystad en reeds 10 jaar woonachtig in Zeewolde. Wij kennen dus de Flevolandse woningmarkt, de omgeving en de kansen. Ik heb meer dan 20 jaar ervaring opgedaan bij verschillende makelaarskantoren en ik stel die kennis graag ter beschikking aan woningzoekers en huizenverkopers in Zeewolde en omstreken.

Met vriendelijke groet,

Julian Entrop

Over Flevopand Makelaars
Reviews Flevopand Makelaars

Muiderweg 17, Zeewolde

€ 475.000 k.k. - Verkocht

Helaas, deze woning is verkocht!

Net te laat, deze woning is al verkocht. Laat een zoekopdracht bij ons achter zodat wij u direct kunnen helpen wanneer er nieuw aanbod beschikbaar komt.